Нужно ли делать проект?
Также предварительное проектирование позволяет заказчику не получить «кота в мешке», т.к. все этапы будущего процесса работы согласовываются и в проект всегда можно внести необходимые корректировки.
В готовом проекте должны быть тщательно прописаны все требования, которые необходимы для проведения работ: место установки котла, место установки радиаторов и их количество; подробный план разводки труб с указанием кранов, фитингов и прочих элементов; требования к автоматике, насосам, дымоходам и т.д. Также рассчитывается смета стоимости работ и материалов.
Специалисты компании «Теплоснаб» выполняют проектирование инженерных систем находясь в постоянном контакте с заказчиком, максимально учитывая все требования и пожелания относительно функциональных возможностей и внешнего вида будущей системы. Помните, качественно выполненный проект инженерной системы гарантирует эффективную и экономичную эксплуатацию системы на долгие годы
Примеры проектных работ компании "Теплоснаб":
Рисунок 1. Система отопления

Рисунок 2. Теплый пол

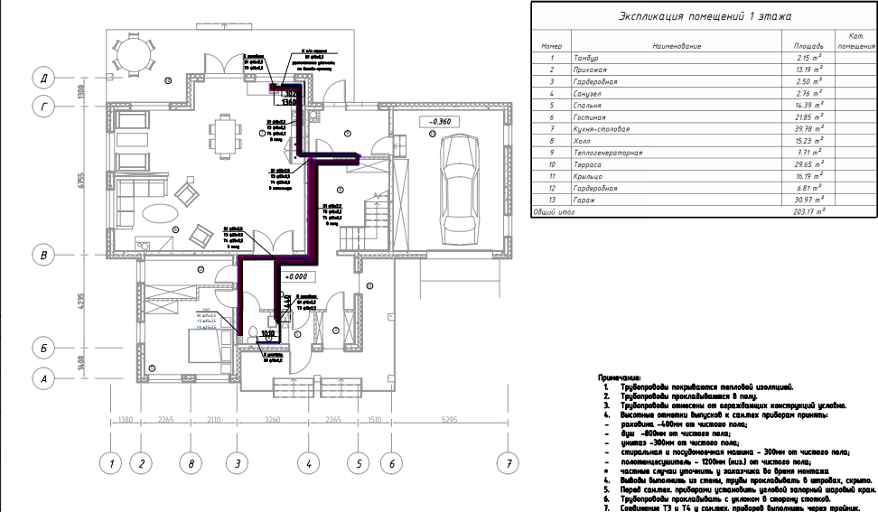
Рисунок 3. Водоснабжение и водоотведение

Рисунок 4. Кондиционирование и холодоснабжение

- Комментарии

